网站首页
公司简介
企业荣誉
新闻资讯
产品中心
营销网络
人才招聘
联系我们
客服中心
当前位置:
首页
>
产品中心
> 美标呼吸阀系列
产品中心
/Products
产品名称:
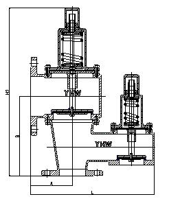
正、负压弹簧加载出口带接管呼有阀
设计特点:Design Features
※ 口径2”~12”(DN50~DN300)
※ 7120系列呼吸阀排放口径与进口相同,方便用户选择;
※ 8120系列呼吸阀排放口径比进口大一级,以增大排放量;
※ 大气排放;
※ 采用安全阀导向及密封结构设计,大幅度提高产品的密封性能;
※ 分体式结构设计,避免正负压导杆的接触,提高产品性能,也便于设备的检查与维护;
※ 防护网可有效阻止外部杂物通过入口或出口进入设备;
※ 根据用户需要,可增加阻火器、吸入弯管、保温夹套、吹扫孔、衬里、除湿等功能结构
※ 设计、检验按API 2000;
※ 法兰标准按ANSI B16.5 根据用户要求可选用EN 1092、JIS、HG/T 20592~20615、GB/T 9113等标准
※ 选用材料:铝合金、碳钢、不锈钢、其它特殊材料设计特点:Design Features
上一页:
负压弹簧加载出口带接管呼吸阀
下一页:
8120
0
【
关闭
】
产品分类
/PRODUCT CATEGORIES
国标呼吸阀系列
美标呼吸阀系列
阻火器系列
带接管呼吸阀系列
液压安全阀
紧急泄放阀系列
安全人孔系列
空气泡沫产生器
小口径锻钢球阀系统列
地址:浙江省永嘉县瓯北镇码道村繁新路3号 电话:0577-67919129 传真:0577-67917129 邮箱:
1491050337@qq.com
网址:
wzby-valve.com
>
Copyright © 2015 WENZHOU BENYUAN V ALVE CO ., LTD. All Rights Reserved. 网站备案号:
浙ICP备2021037588号-1
技术支持:联科科技